30' Vent-A-Hood Premier Magic Lung Professional Or Standard Wall Mounted Hood - DAH30130SS

Concave shape on this classic wall-mount design looks great in any kitchen. Click on the models for a list of our base model numbers for standard sizes; simply select the model you need, and then specify the finish (painted, stainless steel, real brass, real copper, or hammered copper). Recommended mounting height is 30" above the cooking surface. All Vent-A-Hood products are suitable for use in damp locations (outdoor applications such as a covered patio) when installed in a GFCI protected branch circuit.
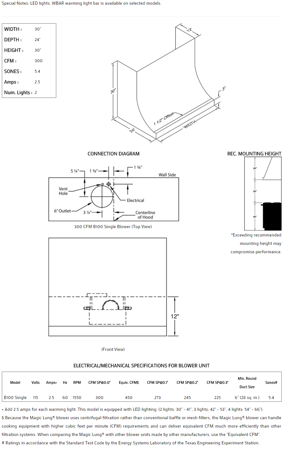
** EQUIV CFM : Because the Magic Lung® blower uses centrifugal filtration rather than conventional baffle or mesh filters, the Magic Lung® blower can handle cooking equipment with higher cubic feet per minute (CFM) requirements and can deliver equivalent CFM much more efficiently than other filtration systems. When comparing the Magic Lung® with other blower units made by other manufacturers, use the “Equivalent CFM”.
Specification

