54" Vent-A-Hood Premier Magic Lung Professional Or Standard Wall Mounted Hood - DAH18354SS

Premier Magic Lung® Professional/Standard Wall Mounted
Classic design of this wall mount fits any kitchen. Choose vertical ends that are perfect for installation between cabinets, or concave ends for a French Country look. Heat lamps may also be added to selected models. Click on the models for a list of our base model numbers for standard sizes; simply select the model you need, and then specify the finish (painted, stainless steel, real brass, real copper, or hammered copper). Recommended mounting height is 30" above the cooking surface. Matching wall mount duct covers (sold separately) are available in standard sizes for 8', 9', and 10' ceiling heights or in custom sizes. All Vent-A-Hood products are suitable for use in damp locations (outdoor applications such as a covered patio) when installed in a GFCI protected branch circuit.

| Inputs & Outputs | |
|---|---|
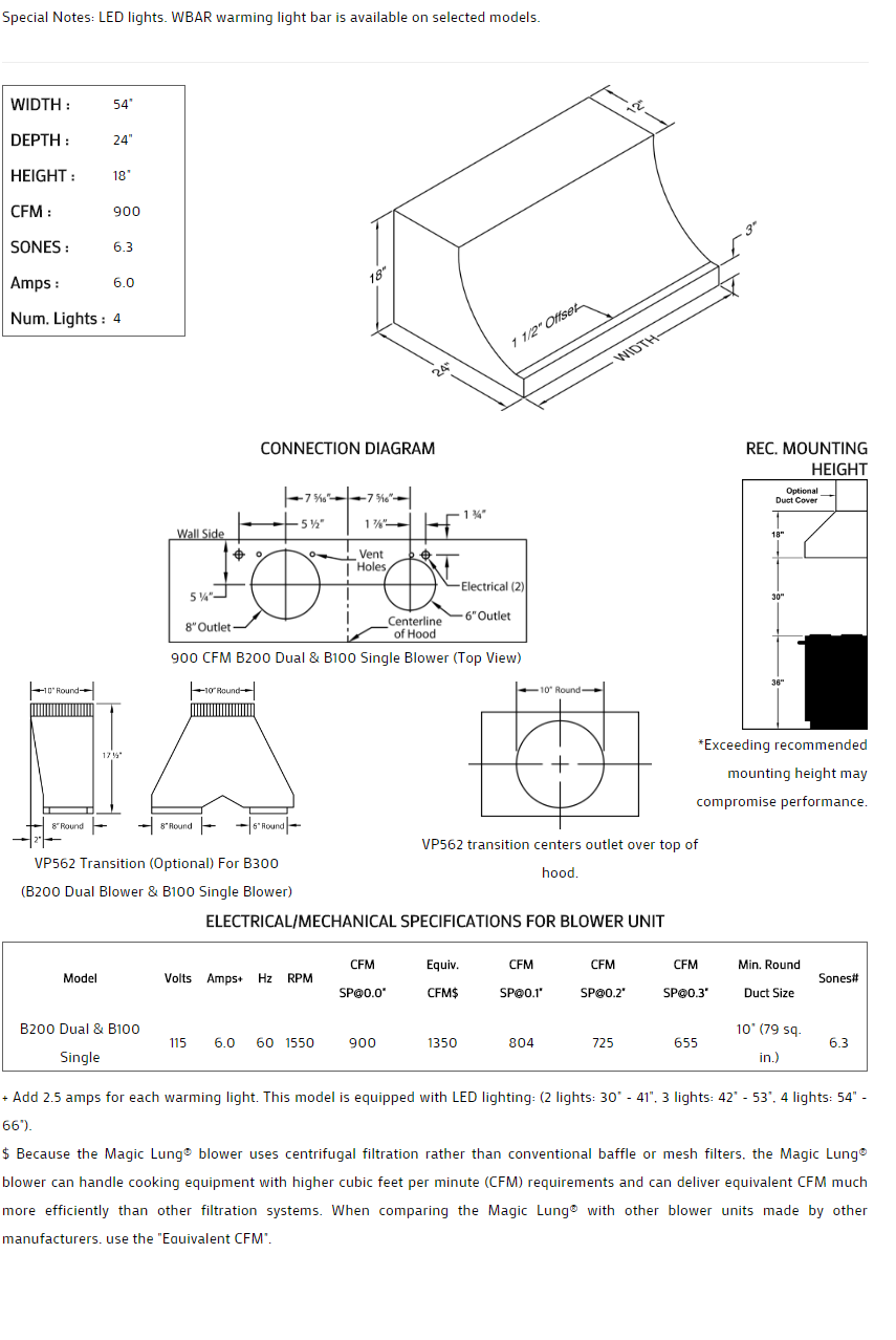
| WIDTH : | 54 |
| DEPTH : | 24" |
| HEIGHT : | 18" |
| CFM : | 600 |
| SONES : | 6.5 |
| Amps : | 4.0 |
| Num. Lights : | 4 |
